WORKS
横須賀市 自由を空間に「HOTELライク」なマンションリノベーション Y様宅

今回担当させていただいたのは、横須賀市にあるY様邸マンションのリノベーションです。
テーマは「非日常」。リゾートやホテルを思わせる空間づくりを目指し、フルスケルトンリフォームによって大幅に間取りを見直しました。
一般的な住宅仕様にとらわれず、広々とした特大のワンフロアを実現。日常の中に特別感を取り入れた、贅沢な住まいへと生まれ変わりました。
キッチン
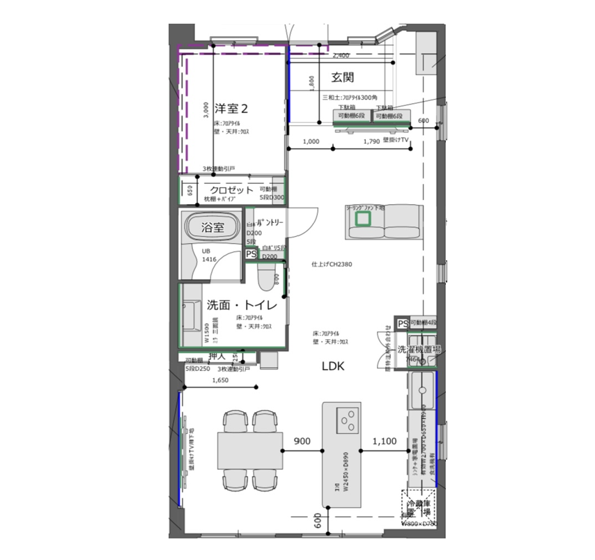
キッチンは左右どちらからもアプローチできる便利な動線を確保しました。採用したのは二列型キッチン。食器棚を別に設ける必要がなく、器具や食器類はすべてキッチン内に収まります。アイランド型と比べても作業スペースがぶつかり合うことがなく、回遊性の高い快適な動線が生まれています。
BEFORE

AFTER




玄関からリビングへ
スタイリッシュなタイル土間は広めにスペースを確保し、シューズクロークやコート掛けを備えることで実用性を高めています。さらに一段上がった裏側にはリビングスペースを配置。自由な発想による、大胆な間取り変更が実現しました。
BEFORE

AFTER




水回り
ご自身の生活をしっかりイメージした水回りのゾーニング変更。洗濯機置き場をキッチン横に移設し、洗面台も30cm間口の広いものに変更しました。ゆとりのある水回り空間が実現しています。
BEFORE

AFTER




ダイニングスペース
和室を取り壊し、ダイニングスペースへと変更しました。カーテンボックスも解体し、スッキリとした印象に。壁掛けテレビ用の壁を造作し、コーブ照明を設置することで、空間に程よいアクセントと引き締まった雰囲気をもたらしています。
ダイニングテーブル上には、富士工業製の「cookiray(クーキレイ)」を設置しました。照明と空気洗浄を兼ね備えたユニークな製品で、焼肉やたこ焼きなど卓上調理に最適です。調光・調色機能で食卓の雰囲気を自由に変えられ、空気洗浄機能により煙や臭いを抑えながら快適に食事を楽しめます。
BEFORE

AFTER




フルリフォームにより、大胆な間取り変更を実現しました。
自由な発想のデザインでありながら、生活動線や日常の過ごし方を細部まで反映。キッチンや水回りの配置、収納の位置など、暮らしやすさを重視した工夫が随所に施されています。
完成した住まいが、快適で心地よい日々を過ごせる空間となりますように。
最後までご覧いただきありがとうございました。
ご質問などございましたら、お気軽にお問い合わせください。
葉山町・逗子市・横須賀市・鎌倉市のリフォーム、リノベーション
株式会社Hachi
お問い合わせ Web : https://8hachi.co.jp/contact TEL : 046-854-9762
BEFORE

AFTER

ギャラリー







